Urbanismo
Málaga avanza en el plan para urbanizar el Camino Bajo de Churriana al oeste de los Jardines del Retiro
El plan urbanístico impulsado por Sanferpor S.L. contempla la creación de 296 viviendas, zonas verdes y equipamientos y un hotel, en un ámbito de actuación con una superficie total de 278.106 metros cuadrados, con especial atención a la movilidad sostenible y la conexión viaria

El Ayuntamiento inicia la tramitación de un ámbito de Churriana en el que se prevén cerca de 300 nuevas viviendas libres y más de 70.000 m2 de zonas verdes. / L. O.

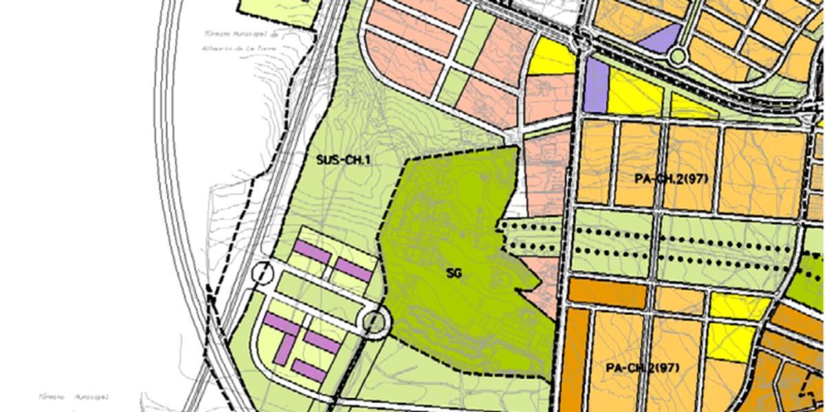
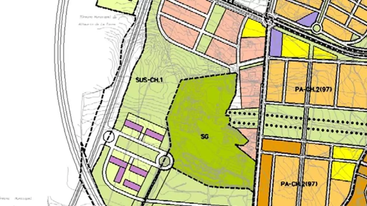
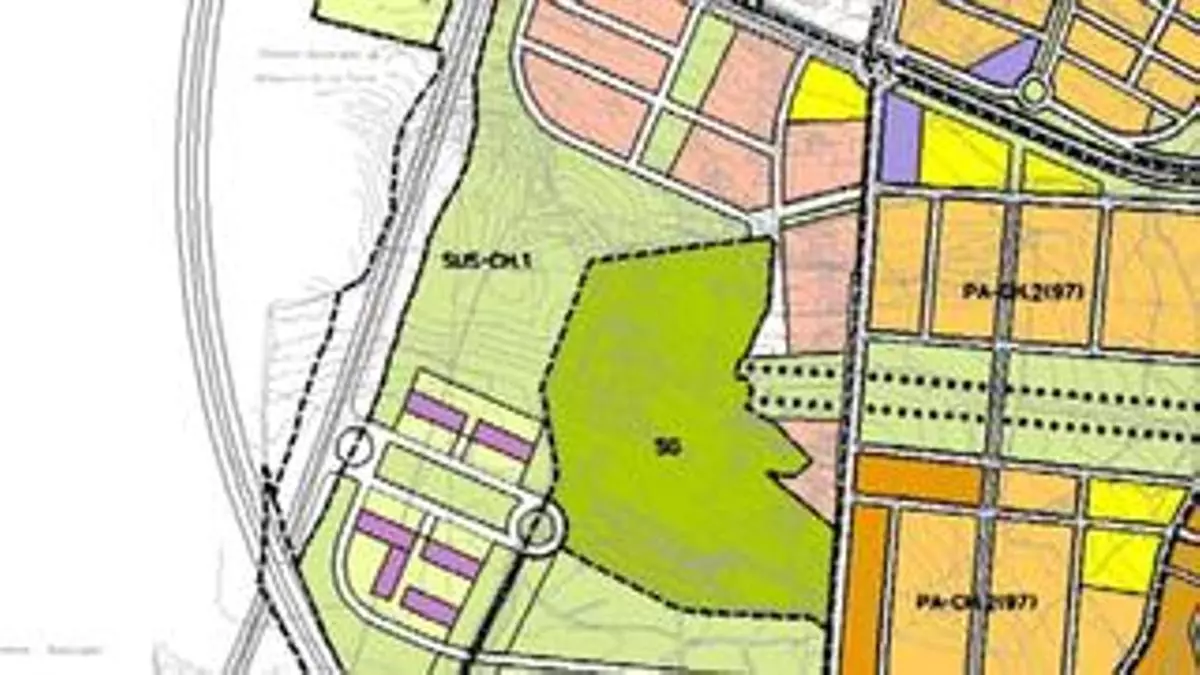
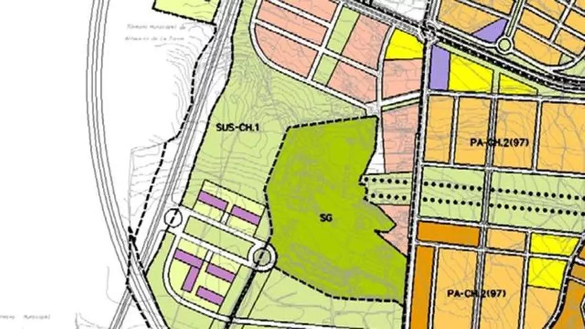
La Junta de Gobierno Local del Ayuntamiento de Málaga ha aprobado este martes admitir a trámite el Avance del Plan Parcial del sector SUS-CH.1 ‘Camino Bajo de Churriana’, una actuación urbanística promovida por Sanferpor S.L. que contempla la construcción de 296 nuevas viviendas, además de suelo para uso hotelero, comercial y zonas verdes. El ámbito de actuación cuenta con una superficie total de 278.106 metros cuadrados, de los que más de 84.600 metros cuadrados se destinarán a espacios públicos, con un marcado protagonismo de las zonas verdes y los equipamientos, junto a los Jardines del Retiro, en su parte occidental.
Según el documento aprobado, 90.406 metros cuadrados del sector se reservarán para uso residencial, donde se prevé la construcción de 296 viviendas libres: 74 de planta baja más una y 222 de planta baja más dos.
El plan incluye también 31.920 metros cuadrados de uso hotelero, con una edificabilidad máxima de 15.960 metros cuadrados y una altura máxima de planta baja más dos, sin superar los 13,80 metros sobre el terreno. A ello se suman 18.694 metros cuadrados de uso comercial y 5.291 metros cuadrados destinados a una instalación de suministro de carburante.
Zonas verdes, equipamientos y nuevos viales
La superficie pública del sector asciende a 84.639 metros cuadrados, de los que 73.537 metros cuadrados se dedicarán a zonas verdes, 11.102 metros cuadrados a equipamientos y 46.466 metros cuadrados a nuevos viales, según ha informado el Ayuntamiento de Málaga.
La memoria del proyecto subraya que el diseño de las zonas verdes tiene en cuenta la protección de los Jardines del Retiro, anexos a este ámbito de actuación, y apuesta por un criterio de proximidad con los equipamientos de sectores colindantes para crear áreas de servicios públicos. Además, se contempla la reforestación de los espacios libres que lo requieran y se estudiará la posibilidad de configurar grandes zonas verdes como parques forestales o periurbanos.
Movilidad sostenible y conexión viaria
El avance del plan parcial incorpora medidas de movilidad sostenible, con la creación de carriles exclusivos para movilidad no motorizada y la instalación de aparcamientos para bicicletas en zonas verdes y equipamientos.
Asimismo, se prevé completar el bulevar proyectado en el entorno de acceso al Retiro, así como mejorar la conexión con el vial distribuidor de la Hiper-Ronda, reforzando la accesibilidad del nuevo desarrollo urbanístico.
- Los temporales sacan a la luz posibles restos del Butano en las playas de Málaga
- Málaga sanciona a la promotora de apartamentos turísticos en Torre de San Telmo por la tala ilegal de árboles
- La borrasca Marta afloja este domingo en Málaga pero mantiene activa la alerta amarilla en Ronda
- Málaga multa con 82.000 euros y veta tres años a una empresa que optaba al socorrismo en las playas
- La ciudad malagueña que será la capital del queso este fin de semana: con degustaciones gratuitas y más de 50 variedades
- Málaga llevaba desde 2013 sin alcanzar los 500 hectómetros cúbicos embalsados
- Sospechas de irregularidades en la adjudicación de VPO en Málaga: el PSOE exige una auditoría completa
- Los resistentes de la calle Alfambra de Málaga: Joyería Vasco y Bar los Cuñao, los dos negocios que persisten desde su construcción